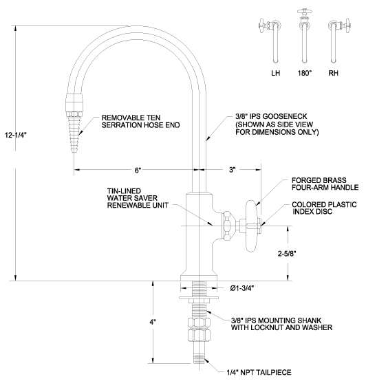
Water Faucet – L691 Tin-lined with 6″ rigid gooseneck and manual control
L691
Deck mounted tin-lined pure water faucet with 6″ rigid gooseneck and manual control
Download AutoCad Drawing and PDF
L691.zip 317.90 Kb
Deck mounted tin-lined pure water faucet with 6″ rigid gooseneck and manual control
Download AutoCad Drawing and PDF
Fixture has an interior lining of pure tin.
Measurements may vary +/- 1/4″

