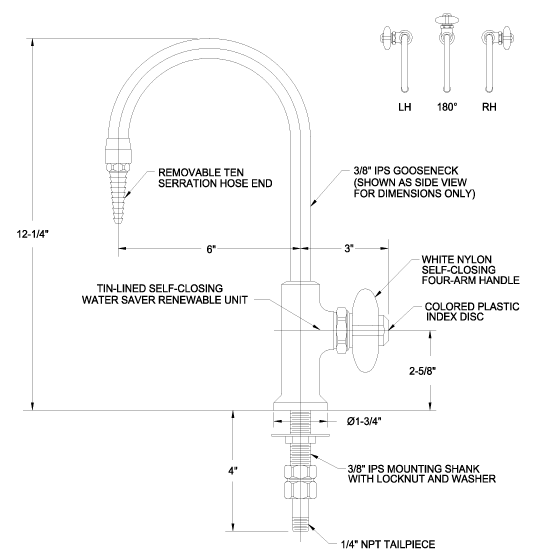
Water Faucet – L681 Tin-lined with 6″ rigid gooseneck and self-closing control
L681
Deck mounted tin-lined pure water faucet with 6″ rigid gooseneck and self-closing control
Download AutoCad Drawing and PDF
L681.zip 330.89 Kb
Deck mounted tin-lined pure water faucet with 6″ rigid gooseneck and self-closing control
Download AutoCad Drawing and PDF
Fixture has an interior lining of pure tin.
Measurements may vary +/- 1/4″

